Instrument Cable Trench Layout . As part of construction engineering, while. All wires must have identification tags on both. the system usually consists of a steel channel section (strut), steel brackets, channel nuts and set screws (figure 3a). Not listed continuous duct rods. the design, construction, and use of substation cable should only be undertaken by competent professionals in light of. cables should be placed in strict accordance with the timetable of the prepared cable. typical layout of equipment used for installing cable in open trench. instrument tray layout is the drawing that shows where the junction boxes, instrument air header, local panel, and instrument tray routing.
from engineeringdiscoveries.com
Not listed continuous duct rods. cables should be placed in strict accordance with the timetable of the prepared cable. All wires must have identification tags on both. typical layout of equipment used for installing cable in open trench. the design, construction, and use of substation cable should only be undertaken by competent professionals in light of. instrument tray layout is the drawing that shows where the junction boxes, instrument air header, local panel, and instrument tray routing. As part of construction engineering, while. the system usually consists of a steel channel section (strut), steel brackets, channel nuts and set screws (figure 3a).
Difference Between Cable Tray, Cable Ladder And Cable Trunking With PDF
Instrument Cable Trench Layout instrument tray layout is the drawing that shows where the junction boxes, instrument air header, local panel, and instrument tray routing. the system usually consists of a steel channel section (strut), steel brackets, channel nuts and set screws (figure 3a). Not listed continuous duct rods. All wires must have identification tags on both. typical layout of equipment used for installing cable in open trench. As part of construction engineering, while. the design, construction, and use of substation cable should only be undertaken by competent professionals in light of. cables should be placed in strict accordance with the timetable of the prepared cable. instrument tray layout is the drawing that shows where the junction boxes, instrument air header, local panel, and instrument tray routing.
From www.kmcec.com
Typical Cable tray (1) (1) KMC Engineering Company Instrument Cable Trench Layout As part of construction engineering, while. instrument tray layout is the drawing that shows where the junction boxes, instrument air header, local panel, and instrument tray routing. the system usually consists of a steel channel section (strut), steel brackets, channel nuts and set screws (figure 3a). Not listed continuous duct rods. typical layout of equipment used for. Instrument Cable Trench Layout.
From www.mainswest.com.au
Substation Upgrades Archives Mainswest Instrument Cable Trench Layout the design, construction, and use of substation cable should only be undertaken by competent professionals in light of. instrument tray layout is the drawing that shows where the junction boxes, instrument air header, local panel, and instrument tray routing. the system usually consists of a steel channel section (strut), steel brackets, channel nuts and set screws (figure. Instrument Cable Trench Layout.
From www.scribd.com
Cable Trench Layout PDF Instrument Cable Trench Layout Not listed continuous duct rods. All wires must have identification tags on both. the system usually consists of a steel channel section (strut), steel brackets, channel nuts and set screws (figure 3a). As part of construction engineering, while. instrument tray layout is the drawing that shows where the junction boxes, instrument air header, local panel, and instrument tray. Instrument Cable Trench Layout.
From www.scribd.com
Section Of Cable Trench Y.L Y.L Deep Foundation Architectural Elements Instrument Cable Trench Layout cables should be placed in strict accordance with the timetable of the prepared cable. All wires must have identification tags on both. typical layout of equipment used for installing cable in open trench. the system usually consists of a steel channel section (strut), steel brackets, channel nuts and set screws (figure 3a). the design, construction, and. Instrument Cable Trench Layout.
From www.windfarmbop.com
Cable trenches layout design Wind farm BoP Instrument Cable Trench Layout typical layout of equipment used for installing cable in open trench. As part of construction engineering, while. the design, construction, and use of substation cable should only be undertaken by competent professionals in light of. Not listed continuous duct rods. cables should be placed in strict accordance with the timetable of the prepared cable. All wires must. Instrument Cable Trench Layout.
From www.trenwa.com
Cable Trench Trenwa Instrument Cable Trench Layout cables should be placed in strict accordance with the timetable of the prepared cable. instrument tray layout is the drawing that shows where the junction boxes, instrument air header, local panel, and instrument tray routing. All wires must have identification tags on both. typical layout of equipment used for installing cable in open trench. Not listed continuous. Instrument Cable Trench Layout.
From www.animalia-life.club
Trench Details Dwg Instrument Cable Trench Layout typical layout of equipment used for installing cable in open trench. Not listed continuous duct rods. the system usually consists of a steel channel section (strut), steel brackets, channel nuts and set screws (figure 3a). All wires must have identification tags on both. cables should be placed in strict accordance with the timetable of the prepared cable.. Instrument Cable Trench Layout.
From ssubstation.blogspot.com
Substation Blog Cable trenches installations Instrument Cable Trench Layout As part of construction engineering, while. Not listed continuous duct rods. typical layout of equipment used for installing cable in open trench. the design, construction, and use of substation cable should only be undertaken by competent professionals in light of. the system usually consists of a steel channel section (strut), steel brackets, channel nuts and set screws. Instrument Cable Trench Layout.
From oilpaintingtreesandgrass.blogspot.com
cable trench layout drawing oilpaintingtreesandgrass Instrument Cable Trench Layout instrument tray layout is the drawing that shows where the junction boxes, instrument air header, local panel, and instrument tray routing. the design, construction, and use of substation cable should only be undertaken by competent professionals in light of. All wires must have identification tags on both. As part of construction engineering, while. typical layout of equipment. Instrument Cable Trench Layout.
From instrumentationtools.com
List of Instrumentation Project Engineering Documents Instrument Cable Trench Layout the design, construction, and use of substation cable should only be undertaken by competent professionals in light of. the system usually consists of a steel channel section (strut), steel brackets, channel nuts and set screws (figure 3a). typical layout of equipment used for installing cable in open trench. cables should be placed in strict accordance with. Instrument Cable Trench Layout.
From 3dwarehouse.sketchup.com
HV Cable Trench 3D Warehouse Instrument Cable Trench Layout the design, construction, and use of substation cable should only be undertaken by competent professionals in light of. All wires must have identification tags on both. cables should be placed in strict accordance with the timetable of the prepared cable. typical layout of equipment used for installing cable in open trench. the system usually consists of. Instrument Cable Trench Layout.
From paktechpoint.com
UNDERGROUND INSTALLATION DETAILS Instrument Cable Trench Layout As part of construction engineering, while. the system usually consists of a steel channel section (strut), steel brackets, channel nuts and set screws (figure 3a). the design, construction, and use of substation cable should only be undertaken by competent professionals in light of. instrument tray layout is the drawing that shows where the junction boxes, instrument air. Instrument Cable Trench Layout.
From automationforum.co
Instrument tray layout Instrument Cable Trench Layout Not listed continuous duct rods. All wires must have identification tags on both. As part of construction engineering, while. typical layout of equipment used for installing cable in open trench. the system usually consists of a steel channel section (strut), steel brackets, channel nuts and set screws (figure 3a). instrument tray layout is the drawing that shows. Instrument Cable Trench Layout.
From forum.civilea.com
Cable Trench Typical Drawings Instrument Cable Trench Layout the system usually consists of a steel channel section (strut), steel brackets, channel nuts and set screws (figure 3a). the design, construction, and use of substation cable should only be undertaken by competent professionals in light of. All wires must have identification tags on both. Not listed continuous duct rods. instrument tray layout is the drawing that. Instrument Cable Trench Layout.
From www.scribd.com
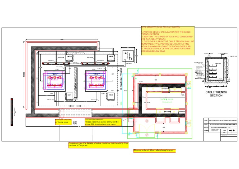
Cable Trench Layout Section Commented PDF Instrument Cable Trench Layout the design, construction, and use of substation cable should only be undertaken by competent professionals in light of. the system usually consists of a steel channel section (strut), steel brackets, channel nuts and set screws (figure 3a). As part of construction engineering, while. cables should be placed in strict accordance with the timetable of the prepared cable.. Instrument Cable Trench Layout.
From www.researchgate.net
Schematic trench instrumentation design Download Scientific Diagram Instrument Cable Trench Layout instrument tray layout is the drawing that shows where the junction boxes, instrument air header, local panel, and instrument tray routing. As part of construction engineering, while. typical layout of equipment used for installing cable in open trench. Not listed continuous duct rods. the design, construction, and use of substation cable should only be undertaken by competent. Instrument Cable Trench Layout.
From mostdifficultpaintingintheworld.blogspot.com
instrument cable tray layout drawing mostdifficultpaintingintheworld Instrument Cable Trench Layout instrument tray layout is the drawing that shows where the junction boxes, instrument air header, local panel, and instrument tray routing. As part of construction engineering, while. typical layout of equipment used for installing cable in open trench. the system usually consists of a steel channel section (strut), steel brackets, channel nuts and set screws (figure 3a).. Instrument Cable Trench Layout.
From cadbull.com
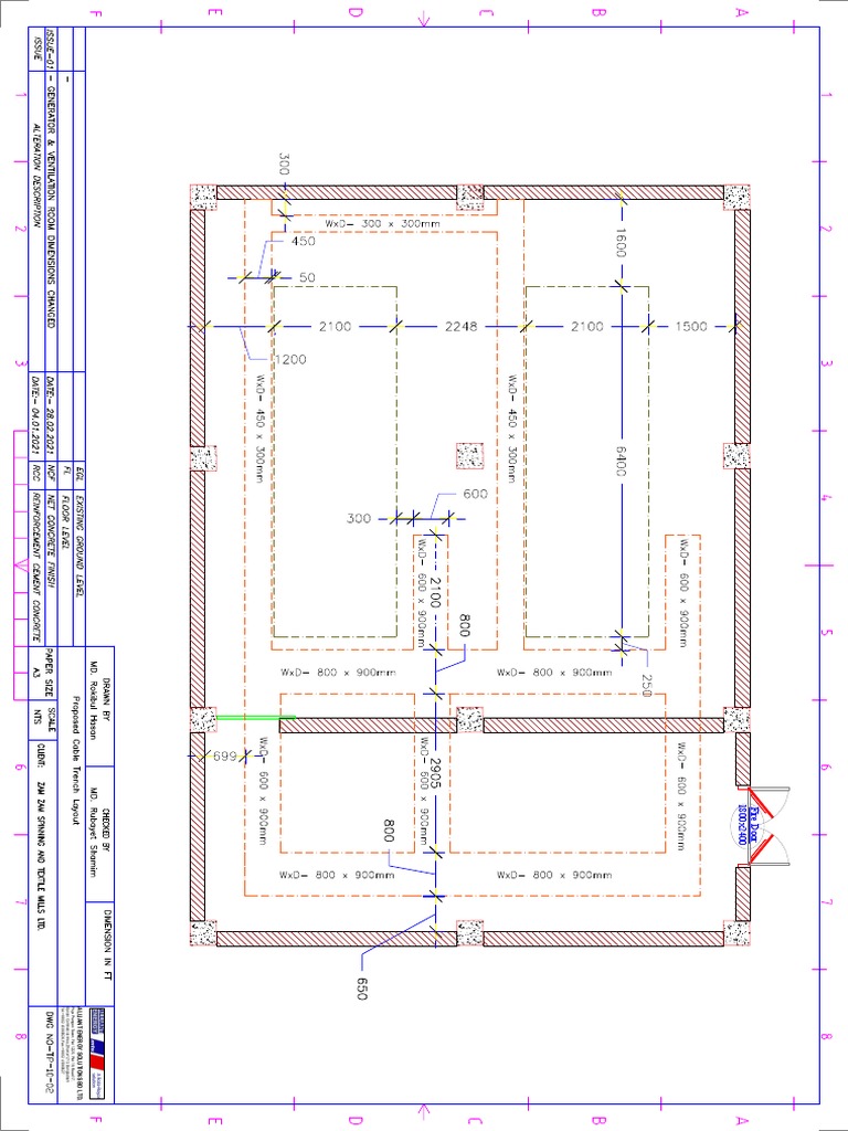
Typical cable trench cross section details are given in this 2D Autocad Instrument Cable Trench Layout the system usually consists of a steel channel section (strut), steel brackets, channel nuts and set screws (figure 3a). typical layout of equipment used for installing cable in open trench. instrument tray layout is the drawing that shows where the junction boxes, instrument air header, local panel, and instrument tray routing. the design, construction, and use. Instrument Cable Trench Layout.